Architecture Design School
Design Studio II - Deconstructing Systems
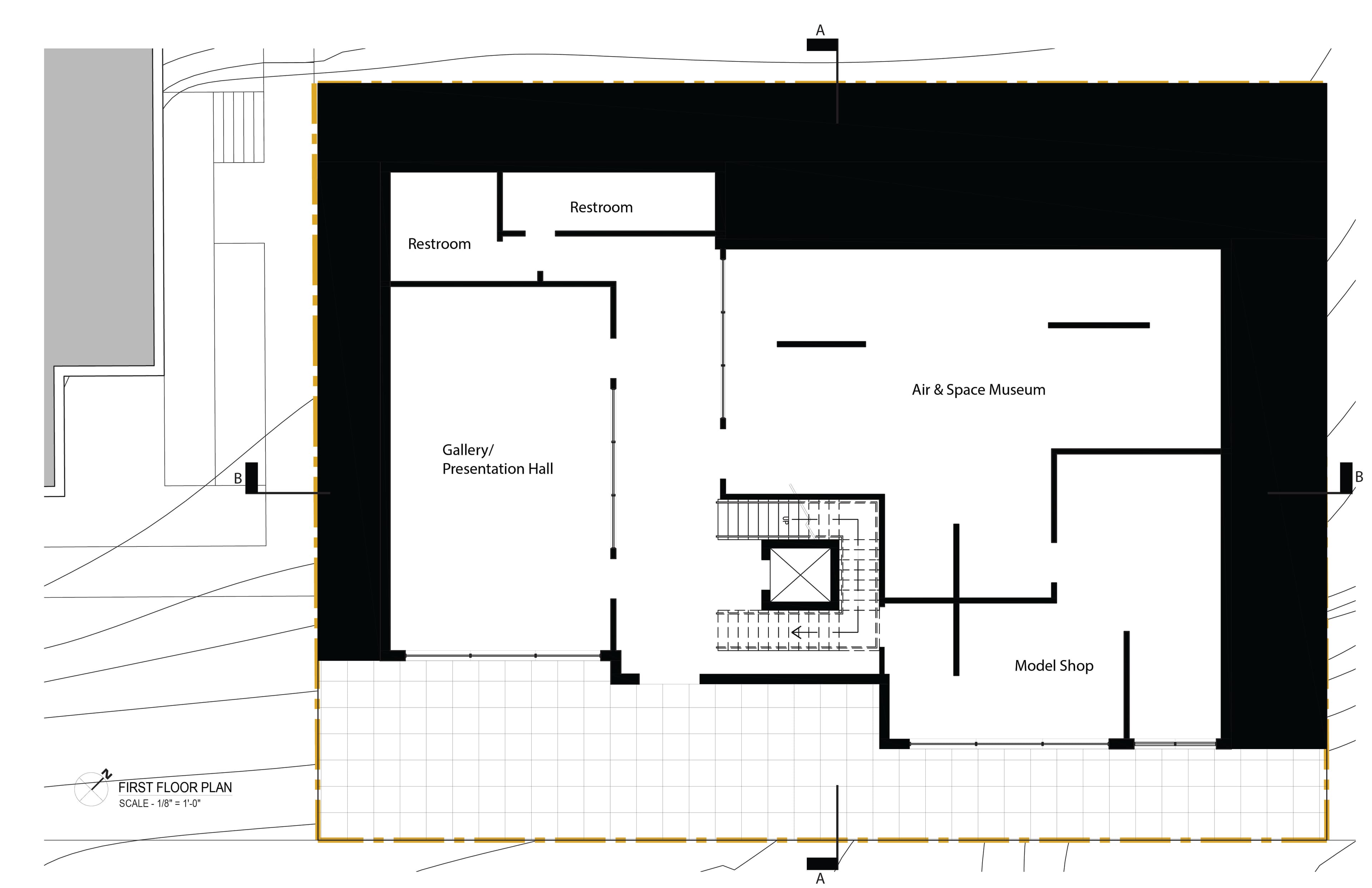
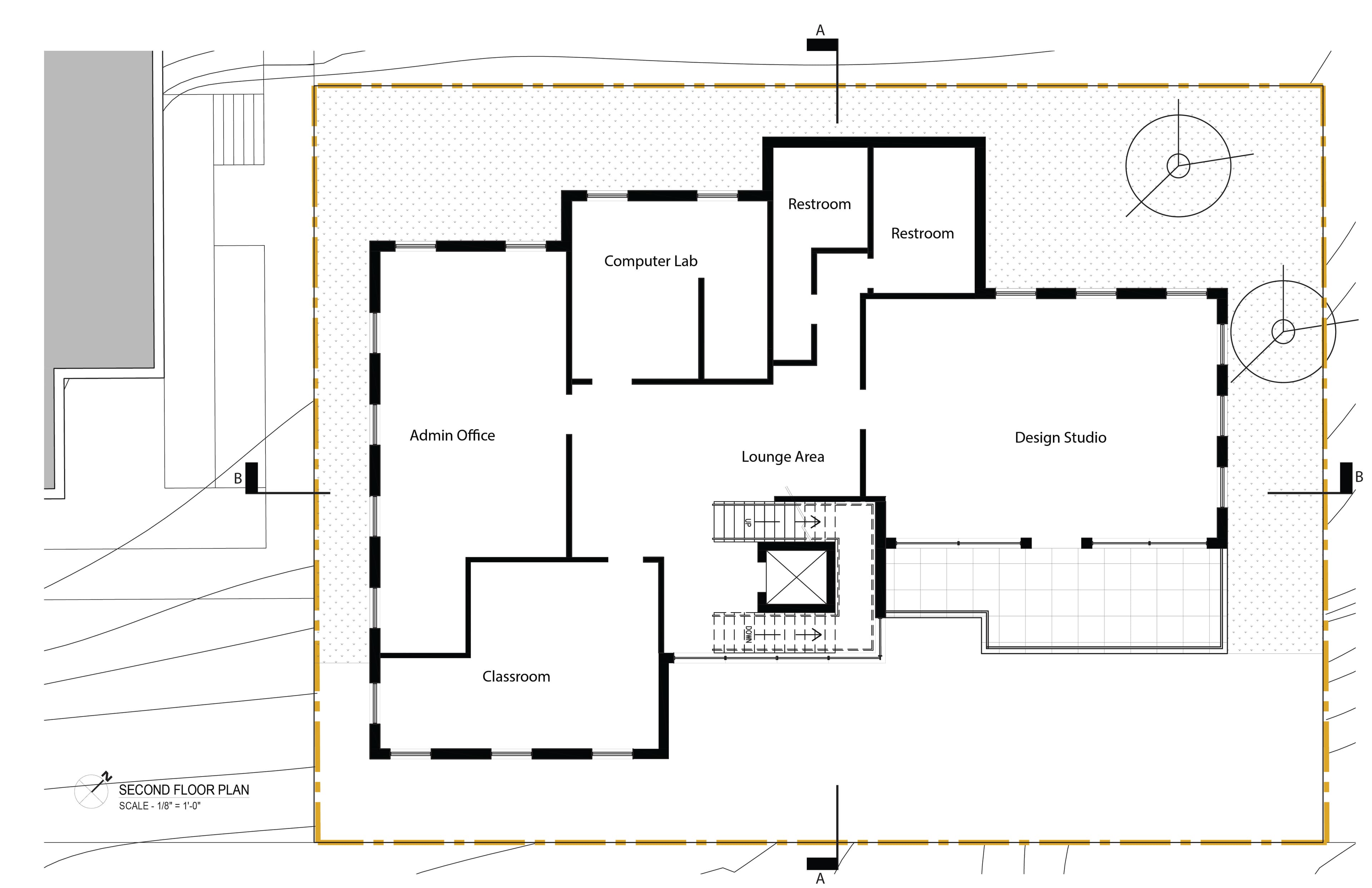
This 9,000 square foot Architecture Design School, situated at the junction of University Drive and O'Hara Street in Pittsburgh, PA, is fundamentally defined by a dual process of systemic deconstruction applied to both form and program. Formally, the building's complex, fractured massing originates from a rigorous hierarchy: primary Elements (Planes, Volumes, Lines) combine into Components (using a precise 2:1 ratio), which are then structurally altered into Modified Components to generate the final design. Programmatically, this formal instability is mirrored in the strict vertical zoning, systematically organizing the building from most Public on the first floor, transitioning through Semi-Private on the second, and culminating in exclusively Private academic functions on the third and fourth floors. This combined application of deconstruction—as both a generative tool for form and a strategic tool for programmatic stratification—creates an academic environment that physically challenges established hierarchies and encourages active critical engagement with architectural norms.






