Construction Drawings
Technical Documentation
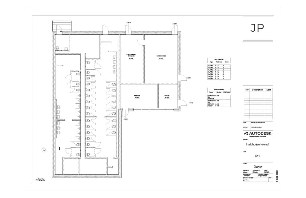
A collection of detailed construction drawings showcasing technical precision and architectural documentation standards. These drawings demonstrate comprehensive understanding of building systems, material specifications, and construction methodologies essential for translating design intent into built reality.

